長崎市 T様邸WORKS
| お客様のご要望 | 和式の古いトイレを、使い勝手がよくて明るくスッキリとした空間にしたい。(T様より) |
|---|
|
施工事例データ
| 住所 | 外海町 |
|---|---|
| 施工箇所 | トイレ |
| 費用 | 90万円 |
| 工期 | 14日間 |
| ご提案内容 |
まずは、スペースを1m×0.78m→1.92m×0.83へ広げました。そして、スッキリとした印象のL型カウンタータイプ、さらに縦型のルーバー窓を使用することで、視覚的にゆったりとした空間を演出。趣味の花瓶収納棚をコーナーに設けました。 TOTO2004「九州ブロック賞」受賞作品 |
|---|
施工前はこちら
和式のトイレは身体への負担が大きく、安全面でも心配です。
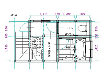
施工前の間取り図です。
施工が完了しました
広くなったスペースにはL字型カウンターと収納棚を設置しました。
明るく清潔感溢れるスペースが誕生しました!
施工後の間取り図です。






